$104,900
Moorhead, MN 56560
MLS# 7034759
4 beds | 3 baths | 2670 sqft

1 / 65
Property Description
Two-story single-family home offering approximately 1,864 finished square feet with four bedrooms and three bathrooms. The main level includes a foyer, living room, dining area, kitchen, and bathroom, with bedrooms located on the upper level. Additional space is provided by the lower level with recreation, laundry, utility, and storage areas. Features include hardwood flooring, two wood-burning fireplaces, central air conditioning, natural gas forced-air heating, and city water and sewer. The property includes an attached single-stall garage, patio area, and fenced yard, and is situated on a residential lot within the city of Moorhead.
Details
Maps
Contract Information
Owner is an Agent?: No
Auction?: No
Status: Active
Contingency: None
Current Price: $104,900
Original List Price: 104900
ListPrice: 104900
List Date: 2026-03-12
Office/Member Info
Association: GLAR
General Property Information
Common Wall: No
Lot Measurement: Acres
Manufactured Home?: No
Multiple PIDs?: No
New Development: No
Number of Fireplaces: 2
Waterfront Present: No
Year Built: 1939
Yearly/Seasonal: Yearly
Zoning: Residential-Single Family
Lot Dimensions: 75x140
Acres: 0.24
Bath Three Quarters: 1
Bath Half: 1
Bath Quarter: 0
Main Floor Total SqFt: 806
Above Grd Total SqFt: 1864
Below Grd Total SqFt: 806
Total Finished Sqft: 1864.00
FireplaceYN: Yes
Foundation Size: 806
Style: (SF) Single Family
Garage Stalls: 1
Association Fee: 0
Bedrooms: 4
Baths Total: 3
Bath Full: 1
Total SqFt: 2670
Location, Tax and Other Information
AssocFeeYN: No
Legal Description: SUBDIVISIONNAME NORTH COLLEGE PLACE LOT 013 SUBDIVISIONCD 58545 & W 1/2 OF LOT 12
Listing City: Moorhead
Map Page: 999
Municipality: Moorhead
School District: Moorhead
School District Phone: 218-284-3300
Property ID Number: 585450110
Tax Year: 2025
Tax Amount: 1696
In Foreclosure?: No
Potential Short Sale?: No
Lender Owned?: Yes
Directions & Remarks
Public Remarks: Two-story single-family home offering approximately 1,864 finished square feet with four bedrooms and three bathrooms. The main level includes a foyer, living room, dining area, kitchen, and bathroom, with bedrooms located on the upper level. Additional space is provided by the lower level with recreation, laundry, utility, and storage areas. Features include hardwood flooring, two wood-burning fireplaces, central air conditioning, natural gas forced-air heating, and city water and sewer. The property includes an attached single-stall garage, patio area, and fenced yard, and is situated on a residential lot within the city of Moorhead.
Directions: From intersection Hwy 10 and Cty Rd 75, follow to 5th Ave S and turn left. Drive 4 blocks and house is on your right hand side.
Accessible
None: 1
Air Conditioning
Central Air: 1
Assessments
Assessment Balance: 0
Tax With Assessments: 2032
Basement
Concrete Block: 1
Foundation Dimensions: 31x26
Building Information
Finished SqFt Above Ground: 1864
Construction Status
Previously Owned: 1
Exterior
Shakes: 1
Fencing
Chain Link: 1
Fireplace Characteristics
Wood Burning: 1
Foundation
Concrete Block: 1
Fuel
Natural Gas: 1
Heating
Forced Air: 1
Insurance Fee
Insurance Fee: 0
Lease Details
Land Leased: Not Applicable
Miscellaneous Information
DP Resource: Yes
Homestead: Yes
Ownership
Fractional Ownership: No
Parking Characteristics
Garage Dimensions: 12x21
Garage Square Feet: 252
Patio, Porch and Deck Features
Patio: 1
Public Survey Info
Range#: 48
Section#: 08
Township#: 139
Roof
Asphalt Shingles: 1
Sellers Terms
Cash: 1
Conventional: 1
Conventional Rehab: 1
FHA Rehab 203k: 1
Sewer
City Sewer/Connected: 1
Stories
Two: 1
Water
City Water/Connected: 1
Location Tax and Other Information
House Number: 1215
Street Name: 5th
Street Suffix: Avenue
Street Direction Suffix: S
Postal City: Moorhead
County: Clay
State: MN
Zip Code: 56560
Complex/Dev/Subdivision: North College Place
Property Features
Accessible: None
Air Conditioning: Central Air
Basement: Concrete Block
Construction Status: Previously Owned
Exterior: Shakes
Fencing: Chain Link
Fireplace Characteristics: Wood Burning
Foundation: Concrete Block
Fuel: Natural Gas
Heating: Forced Air
Roof: Asphalt Shingles
Sellers Terms: Cash; Conventional; Conventional Rehab; FHA Rehab 203k
Sewer: City Sewer/Connected
Stories: Two
Water: City Water/Connected
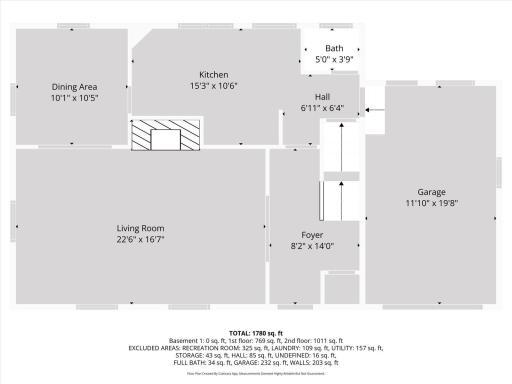
Room Information
| Room Name | Dimensions | Level |
| Bathroom | 5x3.9 | Main |
| Bathroom | 7.11x4.8 | Upper |
| Bathroom | 4.9x7 | Lower |
| Dining Room | 10x10 | Main |
| First (1st) Bedroom | 17x14 | Upper |
| First (1st) Bedroom | 12x19.8 | Upper |
| Foyer | 8x14 | Main |
| Kitchen | 15x10 | Main |
| Laundry | 10x10 | Lower |
| Living Room | 22x16 | Main |
| Recreation Room | 21.7x14 | Lower |
| Second (2nd) Bedroom | 13x10 | Upper |
| Third (3rd) Bedroom | 10x14 | Upper |
Listing Office: Gallery of Homes
Last Updated: March - 17 - 2026
The data relating to real estate for sale on this web site comes in part from the Broker Reciprocity SM Program of the Regional Multiple Listing Service of Minnesota, Inc. The information provided is deemed reliable but not guaranteed. Properties subject to prior sale, change or withdrawal. ©2024 Regional Multiple Listing Service of Minnesota, Inc All rights reserved.
