$385,000
Menomonie, WI 54751
MLS# 7010339
2 baths

1 / 45
Property Description
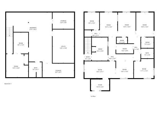
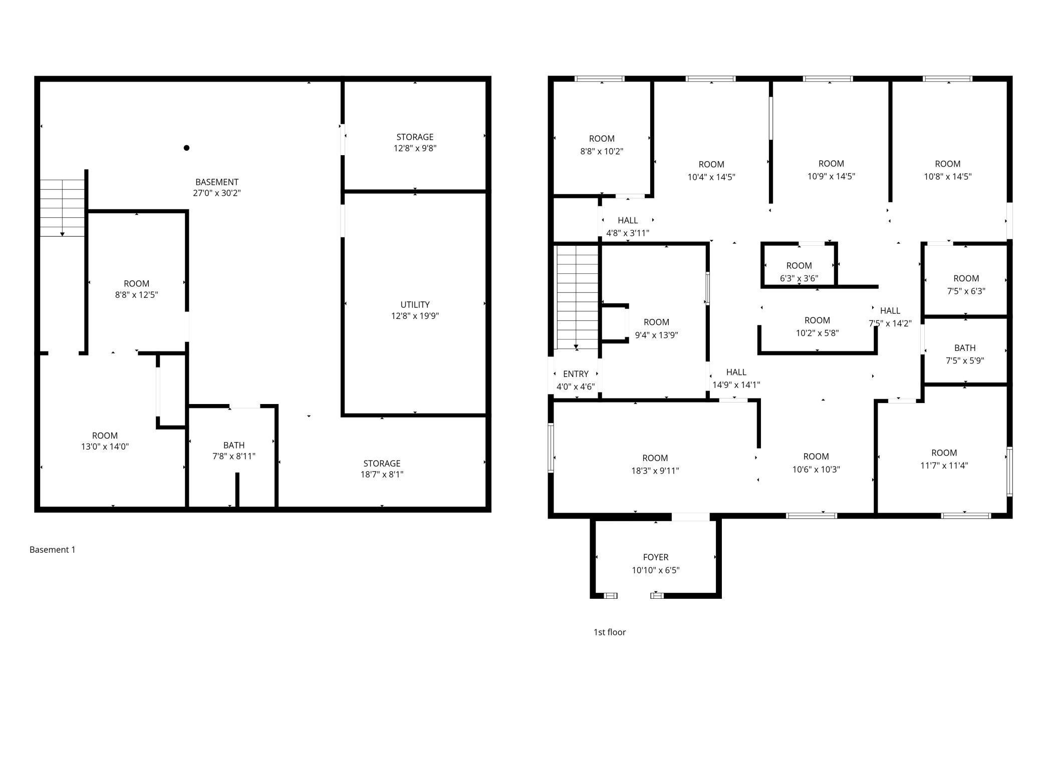
Quality office building for sale in North Menomonie ideal for a dental clinic, medical facility, chiropractic office, counseling location, day care, yoga studio, accounting or law office. Spacious waiting area, great reception space, numerous sinks throughout the building, nice break area downstairs, ample parking, abundance of storage, and more! Extra lot to the north included in the sale for future expansion or play area if chosen for a day care! Specific floor plan uploaded for layout detail. Fast closing possible. Formerly used as a dental clinic. Zoned B2.
Details
Maps
Contract Information
Owner is an Agent?: No
Auction?: No
Status: Active
Current Price: $385,000
Contingency: None
ListPrice: 385000
List Date: 2026-01-21
Office/Member Info
Association: WWRA
General Property Information
Lot Measurement: Acres
Multiple PIDs?: Yes
Other Parking Spaces: 21
Owner Occupied: No
Waterfront Present: No
Year Built: 1997
Yearly/Seasonal: Yearly
Zoning: Business/Commercial
Lot Dimensions: 1
Acres: 0.66
Foundation Size: 1848
Garage Stalls: 0
Power Company: Xcel Energy
For Sale or Lease: For Sale
Baths Total: 2
Location, Tax and Other Information
Legal Description: 1st BK & Trust Business Development Plat Lot 8 & 9 all in 14-28-13, City of Menomonie, Dunn County WI (1725122813143400063 & 1725122813143400062)
Listing City: Menomonie
Map Page: 999
Municipality: Menomonie
School District: Menomonie Area
School District Phone: 715-232-1642
Zip Plus 4: 5827
Property ID Number: 1725122813143400063
Tax Year: 2025
Tax Amount: 7063.2
In Foreclosure?: No
Potential Short Sale?: No
Lender Owned?: No
Directions & Remarks
Public Remarks: Quality office building for sale in North Menomonie ideal for a dental clinic, medical facility, chiropractic office, counseling location, day care, yoga studio, accounting or law office. Spacious waiting area, great reception space, numerous sinks throughout the building, nice break area downstairs, ample parking, abundance of storage, and more! Extra lot to the north included in the sale for future expansion or play area if chosen for a day care! Specific floor plan uploaded for layout detail. Fast closing possible. Formerly used as a dental clinic. Zoned B2.
Directions: I-94 (Exit 41) to South on Hwy 25 to East on Oak Street, to North on Wilson Street to properties on the left.
Accessible
None: 1
Additional Parcels Information
Property ID #2: 17251228131434000062
Air Conditioning
Central Air: 1
Assessments
Assessment Balance: 0
Tax With Assessments: 0
Basement
Full: 1
Partially Finished: 1
Building Information
Building Finished SqFt: 2209
Building SqFt: 3696
Construction Status
Previously Owned: 1
Exterior
Vinyl: 1
Flooring
Carpet: 1
Vinyl/Linoleum: 1
Foundation
Other: 1
Fuel
Natural Gas: 1
Heating
Forced Air: 1
Internet Options
Cable: 1
Lease Details
Land Leased: Not Applicable
Lock Box Type
SentriLock: 1
Miscellaneous Information
Homestead: No
Ownership
Fractional Ownership: No
Pool Description
None: 1
Public Survey Info
Range#: 13W
Section#: 14
Township#: 28N
Road Frontage
City Street: 1
Road Responsibility
Public Maintained Road: 1
Sale Options
Sale Includes: Building, Land
Sewer
City Sewer/Connected: 1
Stories
One: 1
Unit 1
Leased?: No
Unit Number: 1
Half Baths: 1
Three-Quarter Baths: 1
Total Bathrooms: 2
Total Rooms: 12
Unit Total SqFt: 3696
Unit Details
Total Units: 1
Wall Description
Drywall: 1
Water
City Water/Connected: 1
On Site Utilities
Electric Separate: 1
CMU Style
Office: 1
Current Use
Office: 1
Professional Service: 1
Location Description
Free Standing: 1
Potential Use
Office: 1
Professional: 1
Location Tax and Other Information
House Number: 1813 & 1819
Street Name: Wilson
Street Suffix: Street
Street Direction Suffix: NE
Postal City: Menomonie
County: Dunn
State: WI
Zip Code: 54751
Complex/Dev/Subdivision: 1st BK & Trust Business Development Plat Lot 8 & 9
Property Features
Accessible: None
Air Conditioning: Central Air
Basement: Full; Partially Finished
CMU Style: Office
Construction Status: Previously Owned
Current Use: Office; Professional Service
Exterior: Vinyl
Flooring: Carpet; Vinyl/Linoleum
Foundation: Other
Fuel: Natural Gas
Heating: Forced Air
Internet Options: Cable
Location Description: Free Standing
Lock Box Type: SentriLock
On Site Utilities: Electric Separate
Pool Description: None
Potential Use: Office; Professional
Road Frontage: City Street
Road Responsibility: Public Maintained Road
Sewer: City Sewer/Connected
Stories: One
Wall Description: Drywall
Water: City Water/Connected
Listing Office: Rassbach Realty LLC
Last Updated: March - 23 - 2026
The data relating to real estate for sale on this web site comes in part from the Broker Reciprocity SM Program of the Regional Multiple Listing Service of Minnesota, Inc. The information provided is deemed reliable but not guaranteed. Properties subject to prior sale, change or withdrawal. ©2024 Regional Multiple Listing Service of Minnesota, Inc All rights reserved.
