$634,015
Shakopee, MN 55379
MLS# 7025937
4 beds | 3 baths | 3918 sqft

1 / 26
Property Description
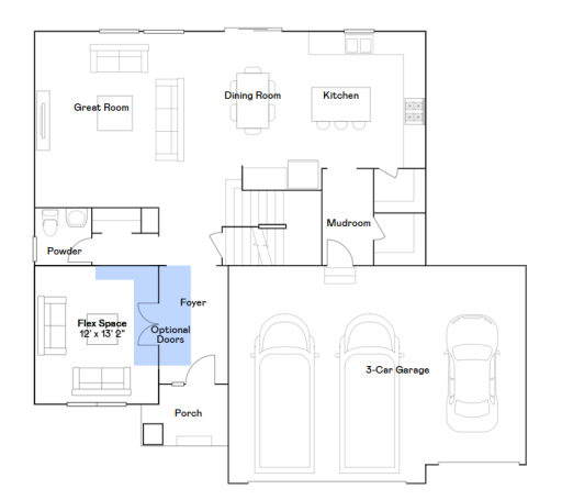
This home is available for a May closing date! This spacious Lewis home offers 4 bedrooms plus a versatile loft, providing plenty of flexible living space for your family. Thoughtful upgrades include sleek door levers, premium faucets, and carpeting throughout. The inviting Great Room features an electric fireplace, creating a cozy focal point, while the expansive kitchen impresses with three walls of cabinetry, a large island with extra storage, and a walk-in pantry. A main-level flex room is perfect for those who work from home. Each bedroom, as well as the mudroom and pantry, includes a walk-in closet, ensuring ample storage for the entire household. The home also features an unfinished lookout lower level, offering endless possibilities for future living space, a home gym, media room, or recreation area. Set in Summerland Place in Shakopee—a vibrant city known for its parks, trails, and top-rated schools—this home provides easy access to shopping, dining, and entertainment, including Canterbury Park and Mystic Lake Casino. With convenient highway access, commuting to the Twin Cities is quick and effortless, making this home a perfect blend of style, space, and location.
Details
Maps
Contract Information
Owner is an Agent?: No
Auction?: No
Status: Active
Contingency: None
Current Price: $634,015
Original List Price: 634015
ListPrice: 634015
List Date: 2026-02-24
Office/Member Info
Association: MAAR
General Property Information
Assoc Mgmt Co. Phone #: 952-898-3460
Association Fee Frequency: Annually
Association Mgmt Co. Name: Summergate
Common Wall: No
Lot Measurement: Acres
Manufactured Home?: No
Multiple PIDs?: No
New Development: No
Number of Fireplaces: 1
Projected Completion Date: 2026-05-08
Waterfront Present: No
Year Built: 2026
Yearly/Seasonal: Yearly
Zoning: Residential-Single Family
Lot Dimensions: TBD
Acres: 0.19
Bath Three Quarters: 0
Bath Half: 1
Bath Quarter: 0
Main Floor Total SqFt: 1226
Above Grd Total SqFt: 2692
Below Grd Total SqFt: 1226
Total Finished Sqft: 2692.00
FireplaceYN: Yes
Foundation Size: 1226
Style: (SF) Single Family
Garage Stalls: 3
Association Fee: 200
Assessment Pending: Unknown
Bedrooms: 4
Baths Total: 3
Bath Full: 2
Total SqFt: 3918
Location, Tax and Other Information
AssocFeeYN: Yes
Legal Description: SUMMERLAND PLACE 2ND ADDN LOT 027 BLOCK 002
Listing City: Shakopee
Map Page: 146
Municipality: Shakopee
School District: Shakopee
School District Phone: 952-496-5006
Country: US
Property ID Number: TBD
Tax Year: 2026
Tax Amount: 0
In Foreclosure?: No
Potential Short Sale?: No
Lender Owned?: No
Directions & Remarks
Public Remarks: This home is available for a May closing date! This spacious Lewis home offers 4 bedrooms plus a versatile loft, providing plenty of flexible living space for your family. Thoughtful upgrades include sleek door levers, premium faucets, and carpeting throughout. The inviting Great Room features an electric fireplace, creating a cozy focal point, while the expansive kitchen impresses with three walls of cabinetry, a large island with extra storage, and a walk-in pantry. A main-level flex room is perfect for those who work from home. Each bedroom, as well as the mudroom and pantry, includes a walk-in closet, ensuring ample storage for the entire household. The home also features an unfinished lookout lower level, offering endless possibilities for future living space, a home gym, media room, or recreation area. Set in Summerland Place in Shakopee—a vibrant city known for its parks, trails, and top-rated schools—this home provides easy access to shopping, dining, and entertainment, including Canterbury Park and Mystic Lake Casino. With convenient highway access, commuting to the Twin Cities is quick and effortless, making this home a perfect blend of style, space, and location.
Directions: Hwy 169 S. to Canterbury Rd exit to Mystic Lake Drive S (Cty Rd 83) then right on 17th Ave. E., right on Philip Dr., left on Tyrone Drive.
Accessible
None: 1
Air Conditioning
Central Air: 1
Amenities Unit
French Doors: 1
In-Ground Sprinkler: 1
Kitchen Center Island: 1
Kitchen Window: 1
Paneled Doors: 1
Porch: 1
Primary Bedroom Walk-In Closet: 1
Walk-In Closet: 1
Washer/Dryer Hookup: 1
Appliances
Air-To-Air Exchanger: 1
Dishwasher: 1
Disposal: 1
Microwave: 1
Range: 1
Refrigerator: 1
Assessments
Assessment Balance: 0
Tax With Assessments: 0
Association Fee Includes
Other: 1
Basement
Storage Space: 1
Unfinished: 1
Bath Description
Double Sink: 1
Main Floor 1/2 Bath: 1
Upper Level Full Bath: 1
Full Primary: 1
Private Primary: 1
Separate Tub & Shower: 1
Builder Information
Builder ID: LENNAR
Builder License Number: 1413
Builder Name: LENNAR
Builders Association of the Twin Cities: 1
Building Information
Availability Dt for Closing: 2026-05-08
Finished SqFt Above Ground: 2692
Construction Status
Under Construc/Spec Homes: 1
Dining Room Description
Eat In Kitchen: 1
Informal Dining Room: 1
Electric
200+ Amp Service: 1
Circuit Breakers: 1
Exterior
Brick/Stone: 1
Vinyl: 1
Family Room Characteristics
2 or More: 1
Family Room: 1
Great Room: 1
Loft: 1
Main Level: 1
Fireplace Characteristics
Electric: 1
Family Room: 1
Foundation
8 ft+ Pour: 1
Fuel
Natural Gas: 1
Heating
Forced Air: 1
Insurance Fee
Insurance Fee: 0
Insurance Fee Frequency: N/A
Laundry
Gas Dryer Hookup: 1
Laundry Room: 1
Sink: 1
Upper Level: 1
Washer Hookup: 1
Lease Details
Land Leased: Not Applicable
Lot Description
Sod Included in Price: 1
Underground Utilities: 1
Miscellaneous Information
Community Name: Summerland Place
DP Resource: Yes
Homestead: No
Model Information
Hours Model Open: Daily 11-6pm
Model Location: 2795 Downing Ave, Shakopee
Model Phone: 952-373-0485
Ownership
Fractional Ownership: No
Parking Characteristics
Garage Square Feet: 648
Garage Door Opener: 1
Patio, Porch and Deck Features
Front Porch: 1
Road Frontage
City Street: 1
Curbs: 1
Paved Streets: 1
Sidewalks: 1
Street Lights: 1
Roof
Age 8 Years or Less: 1
Asphalt Shingles: 1
Pitched: 1
Sellers Terms
Cash: 1
Conventional: 1
FHA: 1
VA: 1
Sewer
City Sewer/Connected: 1
Special Search
2nd Floor Laundry: 1
3 BR on One Level: 1
4 BR on One Level: 1
Primary Bdr Suite: 1
Stories
Two: 1
Unit Details
Total Units Sold: 6
Water
City Water/Connected: 1
Location Tax and Other Information
House Number: 2817
Street Name: Downing
Street Suffix: Avenue
Postal City: Shakopee
County: Scott
State: MN
Zip Code: 55379
Complex/Dev/Subdivision: Summerland Place
Property Features
Accessible: None
Air Conditioning: Central Air
Amenities Unit: French Doors; In-Ground Sprinkler; Kitchen Center Island; Kitchen Window; Paneled Doors; Porch; Primary Bedroom Walk-In Closet; Walk-In Closet; Washer/Dryer Hookup
Appliances: Air-To-Air Exchanger; Dishwasher; Disposal; Microwave; Range; Refrigerator
Association Fee Includes: Other
Basement: Storage Space; Unfinished
Bath Description: Double Sink; Main Floor 1/2 Bath; Upper Level Full Bath; Full Primary; Private Primary; Separate Tub & Shower
Builder Information: Builders Association of the Twin Cities
Construction Status: Under Construc/Spec Homes
Dining Room Description: Eat In Kitchen; Informal Dining Room
Electric: 200+ Amp Service; Circuit Breakers
Exterior: Brick/Stone; Vinyl
Family Room Characteristics: 2 or More; Family Room; Great Room; Loft; Main Level
Fireplace Characteristics: Electric; Family Room
Foundation: 8 ft+ Pour
Fuel: Natural Gas
Heating: Forced Air
Laundry: Gas Dryer Hookup; Laundry Room; Sink; Upper Level; Washer Hookup
Lot Description: Sod Included in Price; Underground Utilities
Parking Characteristics: Garage Door Opener
Road Frontage: City Street; Curbs; Paved Streets; Sidewalks; Street Lights
Roof: Age 8 Years or Less; Asphalt Shingles; Pitched
Sellers Terms: Cash; Conventional; FHA; VA
Sewer: City Sewer/Connected
Special Search: 2nd Floor Laundry; 3 BR on One Level; 4 BR on One Level; Primary Bdr Suite
Stories: Two
Water: City Water/Connected
Room Information
| Room Name | Dimensions | Level |
| Family Room | 16x17 | Main |
| First (1st) Bedroom | 15x16 | Upper |
| Flex Room | 12x13 | Main |
| Fourth (4th) Bedroom | 11x12 | Upper |
| Informal Dining Room | 13x11 | Main |
| Kitchen | 11x13 | Main |
| Loft | 12x10 | Upper |
| Second (2nd) Bedroom | 12x12 | Upper |
| Third (3rd) Bedroom | 12x14 | Upper |
Listing Office: Lennar Sales Corp
Last Updated: March - 17 - 2026
The data relating to real estate for sale on this web site comes in part from the Broker Reciprocity SM Program of the Regional Multiple Listing Service of Minnesota, Inc. The information provided is deemed reliable but not guaranteed. Properties subject to prior sale, change or withdrawal. ©2024 Regional Multiple Listing Service of Minnesota, Inc All rights reserved.
