$310,000
Osceola, WI 54020
MLS# 6677707
Status: Closed
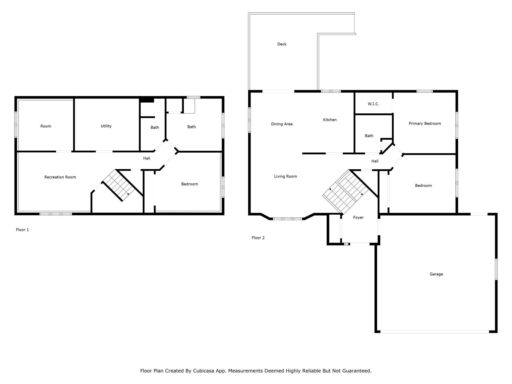
3 beds | 2 baths | 2390 sqft

1 / 39
Property Description
Located at the edge of town, this fixer upper offers the perfect blend of convenience and country living. With a spacious 1.22-acre lot, you'll have plenty of outdoor space to relax, entertain, and enjoy the peaceful surroundings. The home features three bedrooms plus a potential fourth, providing flexibility for your needs while the private backyard with a deck is ideal for gatherings. Situated in the beautiful river town of Osceola, WI, you'll have easy access to shopping, dining, and local attractions while still enjoying the serenity of a more rural setting. This diamond in the rough is ready for your personal touch—add your cosmetic updates and make it your own. Don’t miss this opportunity to create your dream home in a fantastic location. Schedule your showing today!
Details
Maps
Contract Information
Owner is an Agent?: No
Auction?: No
Status: Closed
Off Market Date: 2025-03-26
Contingency: None
Current Price: $310,000
Closed Date: 2025-03-26
Original List Price: 305000
Sales Close Price: 310000
ListPrice: 305000
List Date: 2025-02-27
Office/Member Info
Association: WWRA
General Property Information
Common Wall: No
Lot Measurement: Acres
Manufactured Home?: No
Multiple PIDs?: No
New Development: No
Number of Fireplaces: 0
Waterfront Present: No
Year Built: 1988
Yearly/Seasonal: Yearly
Zoning: Residential-Single Family
Lot Dimensions: 192x221x232x303
Acres: 1.22
Bath Three Quarters: 0
Bath Half: 0
Bath Quarter: 0
Main Floor Total SqFt: 1195
Above Grd Total SqFt: 1195
Below Grd Total SqFt: 1195
Total Finished Sqft: 2059.00
FireplaceYN: No
Foundation Size: 3116
Style: (SF) Single Family
Garage Stalls: 2
Association Fee: 0
Bedrooms: 3
Baths Total: 2
Bath Full: 2
Total SqFt: 2390
Location, Tax and Other Information
AssocFeeYN: No
Legal Description: LOT 2 NELSON'S AIRPORT ACRES
Listing City: Osceola
Map Page: 28
Municipality: Osceola
School District: Osceola
School District Phone: 715-294-4140
Zip Plus 4: 4323
Property ID Number: 042012890000
Tax Year: 2024
Tax Amount: 2500.44
In Foreclosure?: No
Potential Short Sale?: No
Lender Owned?: No
Directions & Remarks
Public Remarks: Located at the edge of town, this fixer upper offers the perfect blend of convenience and country living. With a spacious 1.22-acre lot, you'll have plenty of outdoor space to relax, entertain, and enjoy the peaceful surroundings. The home features three bedrooms plus a potential fourth, providing flexibility for your needs while the private backyard with a deck is ideal for gatherings. Situated in the beautiful river town of Osceola, WI, you'll have easy access to shopping, dining, and local attractions while still enjoying the serenity of a more rural setting. This diamond in the rough is ready for your personal touch—add your cosmetic updates and make it your own. Don’t miss this opportunity to create your dream home in a fantastic location. Schedule your showing today!
Directions: In Osceola, go east on 75th Ave/County Rd M. Turn right on Simmon Drive, second home on the left.
Accessible
None: 1
Air Conditioning
Central Air: 1
Amenities Unit
Deck: 1
Appliances
Dishwasher: 1
Dryer: 1
Refrigerator: 1
Washer: 1
Assessments
Assessment Balance: 0
Tax With Assessments: 2500.44
Assumable Loan
Not Assumable: 1
Basement
Egress Windows: 1
Full: 1
Bath Description
Main Floor Full Bath: 1
Full Basement: 1
Jetted Tub: 1
Separate Tub & Shower: 1
Building Information
Finished SqFt Above Ground: 1195
Finished SqFt Below Ground: 864
Construction Materials
Block: 1
Construction Status
Previously Owned: 1
Electric
Circuit Breakers: 1
Existing Financing
Conventional: 1
Exterior
Vinyl: 1
Financing Terms
Cash: 1
Fuel
Natural Gas: 1
Heating
Forced Air: 1
Insurance Fee
Insurance Fee: 0
Internet Options
Cable: 1
Laundry
Lower Level: 1
Lease Details
Land Leased: Not Applicable
Lock Box Type
Combo: 1
Lot Description
Tree Coverage - Light: 1
Miscellaneous Information
DP Resource: Yes
Homestead: Yes
Ownership
Fractional Ownership: No
Parking Characteristics
Garage Dimensions: 24x33
Garage Square Feet: 792
Public Survey Info
Range#: 19W
Section#: 26
Township#: 33N
Road Frontage
Township: 1
Road Responsibility
Public Maintained Road: 1
Roof
Age Over 8 Years: 1
Sewer
Private Sewer: 1
Septic System Compliant - Yes: 1
Stories
Bi-Level: 1
Water
Private: 1
Well: 1
Location Tax and Other Information
House Number: 742
Street Name: Simmon
Street Suffix: Drive
Postal City: Osceola
County: Polk
State: WI
Zip Code: 54020
Complex/Dev/Subdivision: Nelsons Airport Acres
Property Features
Accessible: None
Air Conditioning: Central Air
Amenities Unit: Deck
Appliances: Dishwasher; Dryer; Refrigerator; Washer
Assumable Loan: Not Assumable
Basement: Egress Windows; Full
Bath Description: Main Floor Full Bath; Full Basement; Jetted Tub; Separate Tub & Shower
Construction Materials: Block
Construction Status: Previously Owned
Electric: Circuit Breakers
Existing Financing: Conventional
Exterior: Vinyl
Financing Terms: Cash
Fuel: Natural Gas
Heating: Forced Air
Internet Options: Cable
Laundry: Lower Level
Lock Box Type: Combo
Lot Description: Tree Coverage - Light
Road Frontage: Township
Road Responsibility: Public Maintained Road
Roof: Age Over 8 Years
Sewer: Private Sewer; Septic System Compliant - Yes
Stories: Bi-Level
Water: Private; Well
Room Information
| Room Name | Dimensions | Level |
| Family Room | 19'10x12'1 | Lower |
| Kitchen | 10'7x12'5 | Main |
| Third (3rd) Bedroom | 11'3x10'5 | Lower |
| Fourth (4th) Bedroom | 13'4x12'1 | Lower |
| First (1st) Bedroom | 12'9x12'6 | Main |
| Second (2nd) Bedroom | 13'8x12 | Main |
| Bathroom | 11'5x10'9 | Lower |
| Bathroom | 7'9x7'7 | Main |
| Bathroom | 10'4x5 | Lower |
| Living Room | 22'2x13'1 | Main |
| Dining Room | 10'8x12'5 | Main |
| Foyer | 11'6x7'4 | Lower |
Listing Office: Edina Realty, Inc.
Last Updated: March - 27 - 2026
The data relating to real estate for sale on this web site comes in part from the Broker Reciprocity SM Program of the Regional Multiple Listing Service of Minnesota, Inc. The information provided is deemed reliable but not guaranteed. Properties subject to prior sale, change or withdrawal. ©2024 Regional Multiple Listing Service of Minnesota, Inc All rights reserved.
