$359,900
Clear Lake, MN 55319
MLS# 7054633
3 beds | 2 baths | 1647 sqft

1 / 17
Property Description
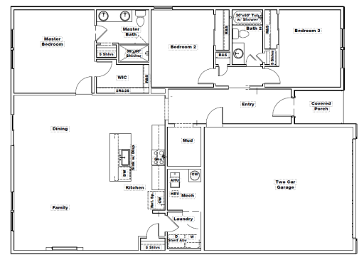
The Hancock by LGI Homes features a family-friendly layout with three bedrooms, two bathrooms and a huge entertainment area. A spacious foyer welcomes you into this home and leads the entertainment area with a spacious family room, dining room and kitchen. This open area allows you and your guests space to spread out and relax. The kitchen overlooks the dining and family rooms and has a spacious island, the perfect entertainment area! With a spacious owner’s suite and two additional bedrooms, you will find the space you need in this incredible new home at Parkside!
Details
Maps
Contract Information
Owner is an Agent?: No
Auction?: No
Status: Active
Contingency: None
Current Price: $359,900
Original List Price: 359900
ListPrice: 359900
List Date: 2026-04-13
Office/Member Info
Association: MAAR
General Property Information
Common Wall: No
Lot Measurement: Acres
Manufactured Home?: No
Multiple PIDs?: No
New Development: No
Number of Fireplaces: 1
Projected Completion Date: 2026-07-31
Waterfront Present: No
Year Built: 2026
Yearly/Seasonal: Yearly
Zoning: Residential-Single Family
Lot Dimensions: 153' x 65'
Acres: 0.24
Bath Three Quarters: 0
Bath Half: 0
Bath Quarter: 0
Main Floor Total SqFt: 1647
Above Grd Total SqFt: 1647
Below Grd Total SqFt: 0
Total Finished Sqft: 1647.00
FireplaceYN: Yes
Foundation Size: 1647
Style: (SF) Single Family
Garage Stalls: 2
Association Fee: 0
Assessment Pending: Unknown
Bedrooms: 3
Baths Total: 2
Bath Full: 2
Total SqFt: 1647
Location, Tax and Other Information
AssocFeeYN: No
Legal Description: SECT-007 TWP-034 RANGE-029 PARKSIDE 3RD ADDN LOT 7 BLOCK 2
Listing City: Clear Lake
Map Page: 245
Municipality: Clear Lake
School District: St. Cloud
School District Phone: 320-253-9333
Property ID Number: 70004230214
Tax Year: 2025
Tax Amount: 26
In Foreclosure?: No
Potential Short Sale?: No
Lender Owned?: No
Directions & Remarks
Public Remarks: The Hancock by LGI Homes features a family-friendly layout with three bedrooms, two bathrooms and a huge entertainment area. A spacious foyer welcomes you into this home and leads the entertainment area with a spacious family room, dining room and kitchen. This open area allows you and your guests space to spread out and relax. The kitchen overlooks the dining and family rooms and has a spacious island, the perfect entertainment area! With a spacious owner’s suite and two additional bedrooms, you will find the space you need in this incredible new home at Parkside!
Directions: From St. Cloud head East on US-10 then turn right onto 70th Ave, then turn left onto 82nd Street, then turn right onto Walnut Street.
Accessible
None: 1
Air Conditioning
Central Air: 1
Amenities Unit
Main Floor Primary Bedroom: 1
Washer/Dryer Hookup: 1
Appliances
Air-To-Air Exchanger: 1
Dishwasher: 1
Disposal: 1
Energy Star Appliances: 1
Freezer: 1
Microwave: 1
Range: 1
Refrigerator: 1
Assessments
Assessment Balance: 0
Tax With Assessments: 26
Assumable Loan
Not Assumable: 1
Basement
None: 1
Bath Description
Main Floor Full Bath: 1
Full Primary: 1
Private Primary: 1
Building Information
Finished SqFt Above Ground: 1647
Construction Materials
Concrete: 1
Frame: 1
Construction Status
Under Construc/Spec Homes: 1
Dining Room Description
Kitchen/Dining Room: 1
Electric
200+ Amp Service: 1
Circuit Breakers: 1
Existing Financing
Free and Clear: 1
Exterior
Brick Veneer: 1
Engineered Wood: 1
Shakes: 1
Vinyl: 1
Family Room Characteristics
Family Room: 1
Main Level: 1
Fencing
None: 1
Fireplace Characteristics
Electric: 1
Foundation
Slab: 1
Fuel
Natural Gas: 1
Heating
Forced Air: 1
Insurance Fee
Insurance Fee: 0
Laundry
Gas Dryer Hookup: 1
Laundry Room: 1
Main Level: 1
Washer Hookup: 1
Lease Details
Land Leased: Not Applicable
Lot Description
Sod Included in Price: 1
Miscellaneous Information
Community Name: Parkside
DP Resource: Yes
Homestead: No
Model Information
Hours Model Open: 11am - 7pm
Model Location: 8266 Walnut Street, Clear Lake, MN 55319
Model Phone: 320-447-2658
Ownership
Fractional Ownership: No
Parking Characteristics
Garage Dimensions: 24' x 20'
Garage Square Feet: 480
Pool Description
None: 1
Public Survey Info
Range#: 29
Section#: 7
Township#: 34
Road Frontage
City Street: 1
Curbs: 1
Paved Streets: 1
Sidewalks: 1
Storm Sewer: 1
Street Lights: 1
Roof
Age 8 Years or Less: 1
Architectural Shingle: 1
Asphalt Shingles: 1
Sellers Terms
Cash: 1
Conventional: 1
FHA: 1
MHFA/WHEDA: 1
Rural Development: 1
VA: 1
Sewer
City Sewer/Connected: 1
Special Search
All Living Facilities on One Level: 1
Main Floor Bedroom: 1
Main Floor Laundry: 1
Main Floor Primary: 1
Stories
One: 1
Water
City Water/Connected: 1
Location Tax and Other Information
House Number: 7701
Street Name: Birch
Street Suffix: Street
Postal City: Clear Lake
County: Sherburne
State: MN
Zip Code: 55319
Complex/Dev/Subdivision: Parkside
Property Features
Accessible: None
Air Conditioning: Central Air
Amenities Unit: Main Floor Primary Bedroom; Washer/Dryer Hookup
Appliances: Air-To-Air Exchanger; Dishwasher; Disposal; Energy Star Appliances; Freezer; Microwave; Range; Refrigerator
Assumable Loan: Not Assumable
Basement: None
Bath Description: Main Floor Full Bath; Full Primary; Private Primary
Construction Materials: Concrete; Frame
Construction Status: Under Construc/Spec Homes
Dining Room Description: Kitchen/Dining Room
Electric: 200+ Amp Service; Circuit Breakers
Existing Financing: Free and Clear
Exterior: Brick Veneer; Engineered Wood; Shakes; Vinyl
Family Room Characteristics: Family Room; Main Level
Fencing: None
Fireplace Characteristics: Electric
Foundation: Slab
Fuel: Natural Gas
Heating: Forced Air
Laundry: Gas Dryer Hookup; Laundry Room; Main Level; Washer Hookup
Lot Description: Sod Included in Price
Pool Description: None
Road Frontage: City Street; Curbs; Paved Streets; Sidewalks; Storm Sewer; Street Lights
Roof: Age 8 Years or Less; Architectural Shingle; Asphalt Shingles
Sellers Terms: Cash; Conventional; FHA; MHFA/WHEDA; Rural Development; VA
Sewer: City Sewer/Connected
Special Search: All Living Facilities on One Level; Main Floor Bedroom; Main Floor Laundry; Main Floor Primary
Stories: One
Water: City Water/Connected
Room Information
| Room Name | Dimensions | Level |
| Bathroom | 10x12 | Main |
| Dining Room | 13x12 | Main |
| Family Room | 13x12 | Main |
| First (1st) Bedroom | 13x14 | Main |
| Kitchen | 10x24 | Main |
| Laundry | 6x6 | Main |
| Primary Bath | 9x9 | Main |
| Mud Room | 6x7 | Main |
| Second (2nd) Bedroom | 10x12 | Main |
Listing Office: LGI Realty-Minnesota, LLC
Last Updated: April - 14 - 2026
The data relating to real estate for sale on this web site comes in part from the Broker Reciprocity SM Program of the Regional Multiple Listing Service of Minnesota, Inc. The information provided is deemed reliable but not guaranteed. Properties subject to prior sale, change or withdrawal. ©2024 Regional Multiple Listing Service of Minnesota, Inc All rights reserved.
